Аренда офиса, Ост Хаус, 3 157.2 м², от 6903.64 ₽ м²/месяц, Москва
Меню

RU

+7 495 258 51 51 Заказать звонок

БЦ Ост Хаус

ID: PT-00002399 Москва, Центральный Административный округ, Барыковский пер, д 2
Кропоткинская , Пешком: 8.00 мин
ещё...
Фото
Карта
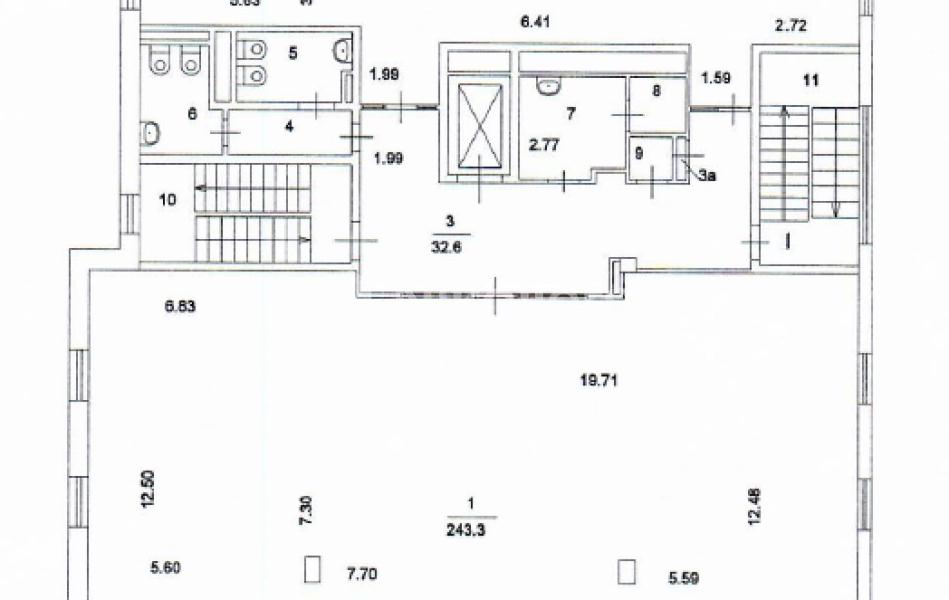
Планировка
Ост Хаус, 3 157.2 м²
Класс
A
Свободная площадь
от 486.7 м²
Все характеристики
Аренда
Цена по запросу

Департамент офисной недвижимости
Департамент офисной недвижимости
+7 495 258 5151 kc@nikoliers.ru
Описание
"Бутиковый" бизнес-центр класса А. Объект находится в Центральном административном округе Москвы, в тихом переулке. Рядом улицы Остоженка, Пречистенка, быстрый прямой доступ к Садовому кольцу и основным транспортным артериям Москвы. От станции метро «Парк Культуры» и "Кропоткинская" дорога пешком занимает 8 минут.
В ближайшем окружении развитая инфрструктура: кафе, рестораны, аптеки, магазины, кофейни, медицинские центры.
Характеристики
Тип здания
Бизнес-Центр
Класс
A
Общая площадь
3 157.2 м²
Арендуемая площадь
2 856 м²
Свободная площадь
486.7 м²
Этажей
6
Статус строительства
Завершен
Технические характеристики
Доступ 24/7
Есть
Высота потолка
4 м
Шаг колонн
от 6*6 до 8*8 м
Система вентиляции
Приточно-вытяжная
Система пожаротушения
Автоматическая (вода, газ и др.)
Все офисы в БЦ Ост Хаус
Ост Хаус, 3 157.2 м²
Класс
A
Свободная площадь
от 486.7 м²
Все характеристики
Аренда
Цена по запросу

Департамент офисной недвижимости
Департамент офисной недвижимости
+7 495 258 5151 kc@nikoliers.ru
Вас могут заинтересовать
QOOB (корпус Q)
Аренда
QOOB (корпус Q)
класс A
10 614 м²
9 этажей
Москва
Западный Административный округ
ул Алексея Свиридова, д 9 стр 3
Кунцевская
1 060.6 м²
4 этаж
62 500 ₽ м²/год
960.4 м²
6 этаж
67 213 ₽ м²/год
1 060.6 м²
6 этаж
67 213 ₽ м²/год
iCity Space Tower
Аренда
iCity Space Tower
класс A
146 406 м²
35 этажей
Москва
Центральный Административный округ
ул Ермакова Роща, д 1 стр 1
Тестовская
10 944 м²
55-60 этажи этаж
65 000 ₽ м²/год
1 249 м²
29 этаж
83 333 ₽ м²/год
10 944 м²
55-60 этажи этаж
90 000 ₽ м²/год
230 м²
21 этаж
100 000 ₽ м²/год
Большой Каретный переулок, 20с3
Аренда
Большой Каретный переулок, 20с3
класс B+
3 176.4 м²
4 этажей
Москва
Центральный Административный округ
Большой Каретный переулок, 20с3
Цветной бульвар
1 507.8 м²
1-4 этаж
36 885 ₽ м²/год
Гагаринский переулок, 33
Аренда
Гагаринский переулок, 33
класс B+
805.1 м²
3 этажей
Москва
Центральный Административный округ
Гагаринский переулок, 33
Смоленская
805.1 м²
-1 - 3 этаж
75 000 ₽ м²/год
Гагаринский 35
Аренда
Гагаринский 35
класс B+
1 649.1 м²
5 этажей
Москва
Центральный Административный округ
Гагаринский переулок, 35
Смоленская
161.8 м²
цоколь этаж
40 791 ₽ м²/год
Особняк Чаплыгина 9
Аренда
Особняк Чаплыгина 9
класс B+
1 745.5 м²
4 этажей
Москва
Центральный Административный округ
ул Чаплыгина, д 9 стр 1
Чистые пруды
320 м²
2-3 этаж
51 853 ₽ м²/год
1 540 м²
-1-3, мансарда этаж
51 853 ₽ м²/год
380 м²
1 этаж
51 853 ₽ м²/год
Даниловская Мануфактура (Корпус Кноп)
Аренда
Даниловская Мануфактура (Корпус Кноп)
класс B+
42 000 м²
5 этажей
Москва
Южный Административный округ
Варшавское шоссе, д 9 стр 1б
Тульская
964.6 м²
3 этаж
26 000 ₽ м²/год
15 143 м²
1-5 этаж
Цена по запросу
743.7 м²
1 этаж
24 328 ₽ м²/год
АФИ Галерея
Аренда
АФИ Галерея
класс A
21 900 м²
7 этажей
Москва
Центральный Административный округ
пл Тверская Застава, д 3
Белорусская
309 м²
4 этаж
Цена по запросу
Арма (стр. 4)
Аренда
Арма (стр. 4)
класс B+
7 629.5 м²
4 этажей
Москва
Центральный Административный округ
Нижний Сусальный пер, д 5 стр 4
Курская
110 м²
1 этаж
23 197 ₽ м²/год
ASPACE Новослободская
Аренда
ASPACE Новослободская
класс B+
12 783.8 м²
2 этажей
Москва
Центральный Административный округ
ул Новослободская, д 16
Менделеевская
182 м²
2 этаж
97 305 ₽ м²/год
872.6 м²
8 этаж
Цена по запросу
Авион
Аренда
Авион
класс B+
19 147 м²
6 этажей
Москва
Северный Административный округ
Ленинградский пр-кт, д 47 стр 2, 3
Аэропорт
491 м²
6 этаж
32 787 ₽ м²/год
Башня Федерация (Восток)
Аренда
Башня Федерация (Восток)
класс A
208 660 м²
100 этажей
Москва
Центральный Административный округ
Пресненская наб, д 12
Деловой центр
82 м²
25 этаж
68 780 ₽ м²/год
Башня на Набережной (Блок С)
Аренда
Башня на Набережной (Блок С)
класс Prime
136 427 м²
57 этажей
Москва
Центральный Административный округ
Пресненская набережная, 10 блок C
Москва-Сити
556 м²
46 этаж
70 000 ₽ м²/год
БЦ NOVO
Аренда
БЦ NOVO
класс A
34 949.7 м²
22 этажей
Москва
Северо-Восточный Административный округ
Сущёвский Вал, 18
Савёловская
1 497 м²
5 этаж
45 082 ₽ м²/год
1 312 м²
15 этаж
49 180 ₽ м²/год
1 521.1 м²
12 этаж
49 180 ₽ м²/год
Бизнес Парк Крылатские Холмы, стр. 3
Аренда
Бизнес Парк Крылатские Холмы, стр. 3
класс A
19 500 м²
6 этажей
Москва
Западный Административный округ
Крылатская ул., 17к3
Крылатское
1 873 м²
4 этаж
50 000 ₽ м²/год
Black and White
Аренда
Black and White
класс B+
20 000 м²
3 этажей
Москва
Южный Административный округ
ул Кожевническая, д 14
Павелецкая
2 326.7 м²
3 этаж
40 000 ₽ м²/год
Большая Черкизовская 21с1
Аренда
Большая Черкизовская 21с1
класс C
7 126.3 м²
4 этажей
Москва
Большая Черкизовская ул., д. 21, стр.1
Черкизовская
4 778 м²
1-3 этаж
15 000 ₽ м²/год
Большая Якиманка, 18
Аренда
Большая Якиманка, 18
класс B+
6 919.1 м²
6 этажей
Москва
Центральный Административный округ
ул Большая Якиманка, д 18
Полянка
1 105.7 м²
3 этаж
38 333 ₽ м²/год
Буревестник
Аренда
Буревестник
класс B+
35 000 м²
5 этажей
Москва
Восточный Административный округ
3-я Рыбинская ул., 18 стр. 22
Сокольники
130 м²
5 этаж
21 000 ₽ м²/год
408.8 м²
2 этаж
26 100 ₽ м²/год
634.6 м²
2 этаж
30 500 ₽ м²/год
CODE DELEGAT
Аренда
CODE DELEGAT
класс A
4 000 м²
3 этажей
Москва
Центральный Административный округ
1-й Щемиловский переулок, 16с2
Новослободская
4 000 м²
1-3 этаж
90 000 ₽ м²/год
ЦСКА АРЕНА (ВЭБ-Арена)
Аренда
ЦСКА АРЕНА (ВЭБ-Арена)
класс A
60 454 м²
8 этажей
Москва
Северный Административный округ
ул 3-я Песчаная, д 2А
Зорге
1 345.6 м²
6 этаж
43 000 ₽ м²/год
Цветной бульвар, 30 стр. 1
Аренда
Цветной бульвар, 30 стр. 1
класс B
13 002.1 м²
7 этажей
Москва
Центральный Административный округ
Цветной бульвар, 30 стр. 1
Цветной бульвар
460 м²
7 этаж
31 967 ₽ м²/год
Достоевский
Аренда
Достоевский
класс B+
5 100 м²
5 этажей
Москва
Северо-Восточный Административный округ
Институтский пер, д 2/1
Достоевская
4 200 м²
1-6 этаж
Цена по запросу
Эрмитаж Плаза, (Здание А) 1-2
Аренда
Эрмитаж Плаза, (Здание А) 1-2
класс A
103 900 м²
8 этажей
Москва
Центральный Административный округ
Краснопролетарская улица, 4
Новослободская
272.3 м²
Цоколь этаж
32 510 ₽ м²/год
Фабрика Станиславского (стр. 1)
Аренда
Фабрика Станиславского (стр. 1)
класс A
10 895 м²
3 этажей
Москва
Центральный Административный округ
Станиславского ул., д. 21, стр 1
Марксистская
865 м²
2 этаж
35 000 ₽ м²/год
Фабрика Станиславского (стр. 3)
Аренда
Фабрика Станиславского (стр. 3)
класс B+
11 971 м²
4 этажей
Москва
Центральный Административный округ
Станиславского ул., д. 21 стр. 3
Марксистская
950 м²
5 этаж
88 421 ₽ м²/год
1 015 м²
5 этаж
Цена по запросу
Фактория (стр. 20)
Аренда
Фактория (стр. 20)
класс B+
3 478.1 м²
4 этажей
Москва
Северный Административный округ
Вятская ул., 27, стр. 20
Савёловская
2 468 м²
1-4 этаж
35 000 ₽ м²/год
Геолог
Аренда
Геолог
класс A
17 072 м²
13 этажей
Москва
Юго-Западный Административный округ
ул Обручева, д 23 к 2 стр 3
Калужская
198.6 м²
8 этаж
26 754 ₽ м²/год
Город Яхт
Аренда
Город Яхт
класс B+
56 713.2 м²
6 этажей
Москва
Северный Административный округ
Ленинградское шоссе, д 37 к 1
Водный стадион
1 800 м²
-1 этаж
Цена по запросу
Гранд Сетунь Плаза
Аренда
Гранд Сетунь Плаза
класс B+
76 362.4 м²
10 этажей
Москва
Западный Административный округ
ул Горбунова, д 2 стр 3
Сетунь
268.5 м²
2 этаж
20 492 ₽ м²/год
185.2 м²
5 этаж
0 ₽ м²/год
154.9 м²
5 этаж
10 484 ₽ м²/год
167 м²
6 этаж
10 484 ₽ м²/год
Гринвуд (корп. 1)
Аренда
Гринвуд (корп. 1)
класс B+
6 363.5 м²
Москва
Северо-Западный Административный округ
МКАД 69-й км, к 1
Волоколамская
251.4 м²
3 этаж
15 869 ₽ м²/год
iCube
Аренда
iCube
класс A
24 870 м²
11 этажей
Москва
Юго-Западный Административный округ
Нахимовский пр-т, д. 58
Профсоюзная
2 084 м²
3 этаж
20 000 ₽ м²/год
Империя
Аренда
Империя
класс A
198 712.7 м²
60 этажей
Москва
Центральный Административный округ
Пресненская наб, д 6 стр 2
Деловой центр
110.3 м²
51 этаж
50 000 ₽ м²/год
101.8 м²
51 этаж
60 000 ₽ м²/год
Калейдоскоп
Аренда
Калейдоскоп
класс B+
115 650 м²
4 этажей
Москва
Северо-Западный Административный округ
Сходненская ул., 56
Сходненская
977.2 м²
8 этаж
22 000 ₽ м²/год
Ленинский проспект 119
Аренда
Ленинский проспект 119
класс A
22 650 м²
8 этажей
Москва
Юго-Западный Административный округ
Ленинский пр-кт, д 119А
Тропарёво
1 686 м²
7 этаж
30 417 ₽ м²/год
317 м²
4 этаж
24 000 ₽ м²/год
575 м²
2 этаж
22 500 ₽ м²/год
148 м²
1 этаж
23 500 ₽ м²/год
Леонтьевский, 25
Аренда
Леонтьевский, 25
класс A
7 579.6 м²
5 этажей
Москва
Центральный Административный округ
Леонтьевский пер, д 25
Тверская
845 м²
3 этаж
56 557 ₽ м²/год
Линкор
Аренда
Линкор
класс B+
62 040 м²
4 этажей
Москва
Северный Административный округ
ул Авиаконструктора Микояна, д 12
ЦСКА
595 м²
4 этаж
31 000 ₽ м²/год
Мерседес-Бенц Плаза
Аренда
Мерседес-Бенц Плаза
класс A
16 662 м²
2 этажей
Москва
Северный Административный округ
Ленинградский пр-кт, д 39А
ЦСКА
7 367 м²
3-9 этаж
48 000 ₽ м²/год
Мосэнка Парк Тауэрс IV
Аренда
Мосэнка Парк Тауэрс IV
класс B+
20 000 м²
2 этажей
Москва
Центральный Административный округ
Таганская ул.,17-23
Марксистская
568 м²
3 этаж
27 000 ₽ м²/год
Московская Типография №2
Аренда
Московская Типография №2
класс B
20 476 м²
8 этажей
Москва
Северо-Восточный Административный округ
пр-кт Мира, д 105 стр 1
Алексеевская
394.1 м²
5 этаж
28 689 ₽ м²/год
Москва
Аренда
Москва
класс A
171 147.6 м²
16 этажей
Москва
Центральный Административный округ
ул Охотный Ряд, д 2
Театральная
213 м²
10 этаж
93 897 ₽ м²/год
Николаевский
Аренда
Николаевский
класс B+
5 883 м²
1 этажей
Москва
Центральный Административный округ
ул Большая Грузинская, д 12 стр 2
Баррикадная
485 м²
1 этаж
40 000 ₽ м²/год
Онегин
Аренда
Онегин
класс B+
46 974 м²
2 этажей
Москва
Центральный Административный округ
ул Малая Полянка, д 2
Полянка
194.5 м²
1 этаж
35 363 ₽ м²/год
Оружейный БЦ
Аренда
Оружейный БЦ
класс A
110 000 м²
34 этажей
Москва
Центральный Административный округ
Оружейный переулок, 41
Маяковская
4 897.9 м²
6 этаж
75 000 ₽ м²/год
Ост Хаус
Аренда
Ост Хаус
класс A
3 157.2 м²
6 этажей
Москва
Центральный Административный округ
Барыковский пер, д 2
Кропоткинская
486.7 м²
4 этаж
82 844 ₽ м²/год
Озерковская набережная, 12
Аренда
Озерковская набережная, 12
класс B
959.5 м²
4 этажей
Москва
Центральный Административный округ
Озерковская наб, д 12
Новокузнецкая
959.5 м²
-1-4 этаж
45 000 ₽ м²/год
Парк Хуамин
Аренда
Парк Хуамин
класс A
105 000 м²
5 этажей
Москва
Северо-Восточный Административный округ
ул Вильгельма Пика, д 16
Ботанический сад
800 м²
14 этаж
43 000 ₽ м²/год
1 232 м²
10 этаж
28 689 ₽ м²/год
1 232 м²
9 этаж
28 689 ₽ м²/год
Прео 8
Аренда
Прео 8
класс A
117 520 м²
23 этажей
Москва
Восточный Административный округ
Преображенская пл, д 8
Преображенская площадь
1 788 м²
22 этаж
22 131 ₽ м²/год
1 785 м²
23 этаж
22 131 ₽ м²/год
2 265 м²
22 этаж
22 131 ₽ м²/год
2 210 м²
23 этаж
22 131 ₽ м²/год
Принципал Плаза
Аренда
Принципал Плаза
класс A
32 434 м²
12 этажей
Москва
Юго-Западный Административный округ
пр-кт 60-летия Октября, д 10А
Академическая
1 076.2 м²
1 этаж
19 000 ₽ м²/год
755.2 м²
1 этаж
0 ₽ м²/год
Риверсайд Тауэрс 1
Аренда
Риверсайд Тауэрс 1
класс A
20 000 м²
6 этажей
Москва
Центральный Административный округ
Космодамианская наб., д. 52, стр. 1
Павелецкая
386 м²
1 этаж
30 000 ₽ м²/год
Риверсайд Тауэрс 11
Аренда
Риверсайд Тауэрс 11
класс A
20 823 м²
2 этажей
Москва
Центральный Административный округ
Космодамианская набережная, 52с11
Павелецкая
266 м²
3 этаж
42 000 ₽ м²/год
РТС Обручева
Аренда
РТС Обручева
класс B
29 984 м²
4 этажей
Москва
Юго-Западный Административный округ
улица Обручева, 52с3
Зюзино
180 м²
4 этаж
17 213 ₽ м²/год
609.9 м²
4 этаж
16 803 ₽ м²/год
Садовническая наб., 9
Аренда
Садовническая наб., 9
класс B+
3 085 м²
5 этажей
Москва
Центральный Административный округ
Садовническая наб, д 9
Новокузнецкая
274 м²
2 этаж
87 273 ₽ м²/год
Саввинская, 11
Аренда
Саввинская, 11
класс B+
5 955.3 м²
9 этажей
Москва
Центральный Административный округ
Саввинская наб, д 11
Киевская
734.5 м²
6 этаж
55 000 ₽ м²/год
Север
Аренда
Север
класс Prime
77 315 м²
2 этажей
Москва
Северный Административный округ
Ленинградский пр-кт, д 36 к 13
Петровский парк
1 730.9 м²
3 этаж
50 000 ₽ м²/год
Северная Башня, подъезд 1
Аренда
Северная Башня, подъезд 1
класс A
75 000 м²
27 этажей
Москва
Центральный Административный округ
Тестовская ул. д. 10
Москва-Сити
4 566 м²
1-3 этаж
52 000 ₽ м²/год
Северное Сияние
Аренда
Северное Сияние
класс A
37 814.7 м²
15 этажей
Москва
Северный Административный округ
Правды ул., д. 26
Савёловская
6 849 м²
8-10 этаж
Цена по запросу
2 280 м²
8 этаж
Цена по запросу
2 279 м²
9 этаж
49 000 ₽ м²/год
Шаболовка-31 (стр.Г)
Аренда
Шаболовка-31 (стр.Г)
класс B_plus
44 568.6 м²
9 этажей
Москва
Южный Административный округ
ул Шаболовка, д 31Г
Шаболовская
316.7 м²
2 этаж
20 833 ₽ м²/год
1 495 м²
6 этаж
22 500 ₽ м²/год
1 513.9 м²
5 этаж
20 833 ₽ м²/год
642 м²
1-2 этаж
20 833 ₽ м²/год
Смоленский Пассаж
Аренда
Смоленский Пассаж
класс A
63 769 м²
20 этажей
Москва
Центральный Административный округ
Смоленская пл. 3
Смоленская
446 м²
6 этаж
40 000 ₽ м²/год
110 м²
5 этаж
28 100 ₽ м²/год
Святогор 4
Аренда
Святогор 4
класс B+
33 265 м²
5 этажей
Москва
Центральный Административный округ
Летниковская ул., д. 10, Стр 4
Павелецкая
593.7 м²
5 этаж
34 426 ₽ м²/год
Технопарк Зил (комплекс Б)
Аренда
Технопарк Зил (комплекс Б)
класс B+
29 482 м²
6 этажей
Москва
Южный Административный округ
Лихачёва проспект, 5.
ЗИЛ
1 213.4 м²
6 этаж
36 885 ₽ м²/год
571 м²
1 этаж
32 787 ₽ м²/год
1 190.9 м²
6 этаж
36 885 ₽ м²/год
1 190.9 м²
6 этаж
24 590 ₽ м²/год
Верейская Плаза III
Аренда
Верейская Плаза III
класс B+
110 000 м²
7 этажей
Москва
Западный Административный округ
ул Верейская, д 29 стр 134
Давыдково
116.5 м²
3 этаж
25 410 ₽ м²/год
222.3 м²
3 этаж
26 230 ₽ м²/год
235.5 м²
3 этаж
26 230 ₽ м²/год
287.7 м²
3 этаж
26 230 ₽ м²/год
Якиманка
Аренда
Якиманка
класс B
2 997 м²
6 этажей
Москва
Центральный Административный округ
ул Большая Якиманка, д 17/2 стр 1
Полянка
272.1 м²
4 этаж
37 705 ₽ м²/год
11-я Красноармейская (БЦ БИВ)
Аренда
11-я Красноармейская (БЦ БИВ)
класс B+
7 500 м²
5 этажей
Санкт-Петербург
Адмиралтейский
11-я Красноармейская ул., 18-20
Балтийская
800 м²
5 этаж
30 000 ₽ м²/год
Аквилон Линкс
Аренда
Аквилон Линкс
класс A
11 207 м²
11 этажей
Санкт-Петербург
Адмиралтейский
Парфёновская ул., 12
Фрунзенская
452.2 м²
9 этаж
24 000 ₽ м²/год
Атрио
Аренда
Атрио
класс A
11 465 м²
10 этажей
Санкт-Петербург
Петроградский
Петроградская наб., 22
Горьковская
180 м²
5 этаж
26 400 ₽ м²/год
Атриум
Аренда
Атриум
класс A
8 560 м²
5 этажей
Санкт-Петербург
Центральный
Невский пр-кт, дом 25
Невский проспект
325.3 м²
5 этаж
30 000 ₽ м²/год
4 700 м²
2-5 этаж
50 000 ₽ м²/год
Бернулли
Аренда
Бернулли
класс B
9 494 м²
Санкт-Петербург
Московский
Киевская улица, 5к3
Фрунзенская
945.7 м²
2 этаж
19 672 ₽ м²/год
1 053.9 м²
-1 этаж
14 400 ₽ м²/год
1 045.5 м²
1 этаж
17 705 ₽ м²/год
7 264 м²
1-3 этаж
26 262 ₽ м²/год
Биржевой 2
Аренда
Биржевой 2
класс B
Санкт-Петербург
Василеостровский
Биржевой пер., 2
Спортивная
1 735.7 м²
1-3 этаж
20 400 ₽ м²/год
Деловой центр Мост
Аренда
Деловой центр Мост
класс B
Санкт-Петербург
Приморский
Коломяжский просп., 10Д
Пионерская
528 м²
2 этаж
31 200 ₽ м²/год
700 м²
2 этаж
31 200 ₽ м²/год
Энерго
Аренда
Энерго
класс B+
20 027 м²
7 этажей
Санкт-Петербург
Московский
Ул. Киевская, 5
Фрунзенская
2 765 м²
7 этаж
21 600 ₽ м²/год
Фабрика
Аренда
Фабрика
класс B+
7 411 м²
7 этажей
Санкт-Петербург
Московский
Московский пр-кт, д. 140, корпус 2, лит. А
Московские ворота
922.6 м²
4 этаж
31 200 ₽ м²/год
Фабрика Бебеля лит З
Аренда
Фабрика Бебеля лит З
класс B
18 645.2 м²
Санкт-Петербург
Центральный
ул. Моисеенко, 22, лит. З
Площадь Александра Невского-1
3 662 м²
6-7 этаж
24 000 ₽ м²/год
431 м²
4 этаж
24 000 ₽ м²/год
1 831 м²
7 этаж
24 000 ₽ м²/год
1 831 м²
6 этаж
24 000 ₽ м²/год
Грегорис Пэлас
Аренда
Грегорис Пэлас
класс A
13 879.7 м²
8 этажей
Санкт-Петербург
Выборгский
Выборгская наб., д. 55/3, лит. А
Выборгская
1 600 м²
8 этаж
0 ₽ м²/год
ICON Плаза (ex. Ренессанс) блок В
Аренда
ICON Плаза (ex. Ренессанс) блок В
класс A
11 000 м²
8 этажей
Санкт-Петербург
Центральный
ул. Марата, д. 69-71, лит. А
Звенигородская
1 172.5 м²
4 этаж
0 ₽ м²/год
Караванная 1
Аренда
Караванная 1
класс A
2 748 м²
3 этажей
Санкт-Петербург
Центральный
Караванная ул., 1
Гостиный Двор
2 000 м²
1-3 этаж
32 400 ₽ м²/год
Лахта Плаза
Аренда
Лахта Плаза
класс A
4 426 м²
8 этажей
Санкт-Петербург
Приморский
Приморский пр., 78 к.5 (В)
Беговая
198 м²
8 этаж
23 607 ₽ м²/год
Лидваль
Аренда
Лидваль
класс B
10 113.1 м²
5 этажей
Санкт-Петербург
Центральный
Большая Морская ул., 3-5
Адмиралтейская
500 м²
6 этаж
26 400 ₽ м²/год
5 100 м²
2-6 этаж
36 000 ₽ м²/год
Монблан
Аренда
Монблан
класс A
8 500 м²
6 этажей
Санкт-Петербург
Выборгский
Большой Сампсониевский пр-кт, 4-6
Площадь Ленина
745 м²
5 этаж
30 000 ₽ м²/год
Морская Столица
Аренда
Морская Столица
класс A
50 982 м²
23 этажей
Санкт-Петербург
Невский
Зольная ул., д. 15
Новочеркасская
431 м²
4 этаж
19 672 ₽ м²/год
957.5 м²
4 этаж
21 600 ₽ м²/год
994.6 м²
12 этаж
21 600 ₽ м²/год
739.7 м²
3 этаж
12 295 ₽ м²/год
Невский, 68
Аренда
Невский, 68
класс A
8 550 м²
6 этажей
Санкт-Петербург
Центральный
Невский пр., 68
Гостиный Двор
340.5 м²
4 этаж
31 000 ₽ м²/год
120.8 м²
5 этаж
31 000 ₽ м²/год
103.2 м²
5 этаж
30 492 ₽ м²/год
Невский (Бабушкина 3)
Аренда
Невский (Бабушкина 3)
класс B
20 131 м²
7 этажей
Санкт-Петербург
Невский
Бабушкина 3
Елизаровская
608.2 м²
3 этаж
8 852 ₽ м²/год
Невский Плаза
Аренда
Невский Плаза
класс A
12 960 м²
8 этажей
Санкт-Петербург
Центральный
Невский пр., 55, лит. А
Маяковская
155 м²
1 этаж
30 000 ₽ м²/год
1 265 м²
3 этаж
25 200 ₽ м²/год
Нобиус (экс. Технополис)
Аренда
Нобиус (экс. Технополис)
класс A
43 116 м²
8 этажей
Санкт-Петербург
Московский
Пулковское шоссе, 40к4
Звёздная
320.3 м²
2 этаж
24 000 ₽ м²/год
154.6 м²
8 этаж
23 400 ₽ м²/год
Ново-Исаакиевский
Аренда
Ново-Исаакиевский
класс A
3 488 м²
3 этажей
Санкт-Петербург
Адмиралтейский
ул. Якубовича, 24А
Адмиралтейская
282.4 м²
2 этаж
30 000 ₽ м²/год
Пассаж
Аренда
Пассаж
класс A
8 725.9 м²
7 этажей
Санкт-Петербург
Центральный
Итальянская ул., 17
Невский проспект
405.6 м²
2 этаж
38 000 ₽ м²/год
362.5 м²
7 этаж
29 508 ₽ м²/год
Примиум
Аренда
Примиум
класс A
18 600 м²
9 этажей
Санкт-Петербург
Приморский
Приморский проспект, 54к1
Беговая
311.8 м²
1 этаж
27 000 ₽ м²/год
1 263.2 м²
9 этаж
26 557 ₽ м²/год
411 м²
1 этаж
27 000 ₽ м²/год
Ренессанс Хаус Блок Б
Аренда
Ренессанс Хаус Блок Б
класс B+
3 011.2 м²
7 этажей
Санкт-Петербург
Центральный
2-я Советская ул., дом 17, лит. Б
Площадь Восстания
368 м²
4 этаж
25 574 ₽ м²/год
Стокманн Невский Центр
Аренда
Стокманн Невский Центр
класс A
5 000 м²
13 этажей
Санкт-Петербург
Центральный
Невский пр-кт, 114-116
Площадь Восстания
416 м²
8 этаж
28 800 ₽ м²/год
Веда Хаус (Veda House)
Аренда
Веда Хаус (Veda House)
класс A
19 771 м²
7 этажей
Санкт-Петербург
Петроградский
Петроградская наб., д. 20, лит. А
Горьковская
388.5 м²
3 этаж
30 000 ₽ м²/год
Собрание II
Аренда
Собрание II
класс B+
27 663 м²
16 этажей
Санкт-Петербург
Московский
Новорощинская ул., 4
Электросила
1 487 м²
12 этаж
25 574 ₽ м²/год
1 397 м²
13 этаж
25 574 ₽ м²/год
1 369 м²
14 этаж
26 000 ₽ м²/год
1 887.7 м²
15-16 этаж
26 000 ₽ м²/год
1
 \ 
91